目黒区大岡山1丁目
価格
1
億
6,500
万円
種別
中古一戸建
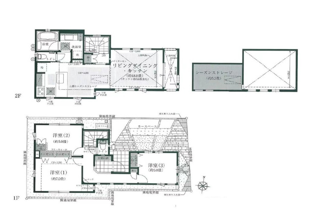
間取
3LDK
建物面積
98.29㎡
住所
東京都目黒区大岡山1丁目
交通
大岡山駅
徒歩8分
担当者のコメント
藍川友希
目黒線大岡山駅から徒歩約8分の閑静な住宅街。建物98.29㎡の2階建3SLDK、カースペースもございます。約18.8帖のLDK上部は吹き抜けとなっており、開放感を感じられます。全室2面採光で通風・採光も良好!家具付き・現況空室です。お問い合わせを心よりお待ちしております。
間取り