00件
最近見た物件
00件
検討リスト
リードホームTOP > (マンション(売買))地域から探す > 世田谷区 > グランドメルシー駒沢
世田谷区野沢4丁目に「グランドメルシー駒沢」が登場!
田園都市線駒沢大学駅から徒歩約8分・三軒茶屋駅から徒歩約19分、世田谷線西太子堂駅から徒歩約22分。
2路線3駅利用可能な大変便利な立地に位置した物件です。
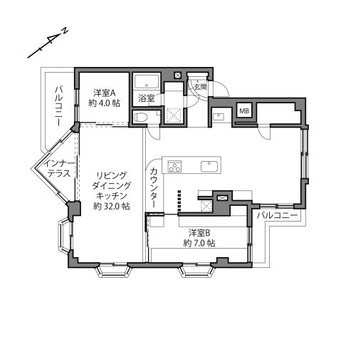
駅徒歩約7分。専有面積約90.54㎡の南西向き2LDK。3方向角部屋。
田園都市線・世田谷線の不動産(住宅)のことならリードホームへお任せ下さい。

0120-423-023
営業時間 9:30~20:00 定休日:12月31日・1月1日・2日・3日
無料!カンタン会員登録!お得情報満載!!
最新物件、未公開物件情報が閲覧いただけます!










(※元利均等方式 金利5.00%まで ※返済年数5~50年まで入力できます)
(※ボーナスは年2回で計算しています。1000万円まで入力できます)
(※物件購入時、その他諸費用が発生する場合がございます)






| 所在地 | 東京都世田谷区野沢4丁目 | ||
|---|---|---|---|
| 交通 | |||
| 間取り/詳細 |
2LDK LDK 32.0帖/洋室 4.0帖/洋室 7.0帖 |
||
| 専有面積/バルコニー面積 | 90.54㎡/7.30㎡ | ルーフバルコニー面積/テラス面積/専用庭面積 | -/-/- |
| 価格 | 1億1,980万円 | ||
| 管理費 | 27,380円 | ||
| 修繕積立金 | 18,100円 | 修繕積立基金 | - |
| 権利金 | - | 駐車場/月額料金 | -/12,500円 ~15500円 |
| 土地の敷金/保証金 | -/- | 借地料/借地期間 | -/- |
| 土地権利 | 所有権 | 国土法届出要否 | 不要 |
| 用途地域 | 第一種低層住居専用 | 地勢 | - |
| 種別/構造 | 中古マンション/鉄筋コンクリート | 向き | 南西 |
| 築年月(築年数) | 1988年 11月 (築37年) | ||
| 所在階/階建 | 2階/3階建 | 棟総戸数/販売戸数 | 4戸/- |
| 管理組合有無 | 有 | 管理形態 | 管理会社に全部委託 |
| 管理方式 | 巡回 | 管理会社 | 日本マンション管理(株) |
| 取引態様 | 仲介 | 現況 | 居住中 |
| 引渡し | 相談 | 建築確認番号 | - |
| 物件番号 | 100352443 | 取引条件の有効期限 | 2026年01月20日 |
| 設備条件 |
|
||
| 備考 |
◆「グランドメルシー駒沢」のご紹介◆ ・「グランドメルシー駒沢」は好立地! 田園都市線駒沢大学駅から徒歩約8分・三軒茶屋駅から徒歩約19分、世田谷線西太子堂駅から徒歩約22分。 2路線3駅利用可能な大変便利な立地に位置した物件です。 周辺はコンビニや総合病院などの生活利便施設が充実していてお買い物に便利! ・「グランドメルシー駒沢」は設備充実の物件! アイランドキッチン・カウンター・IHコンロ・追焚機能・浴室乾燥機・温水洗浄便座・室内洗濯機置場・WIC・TVモニター付きインターホン・2面バルコニー・インナーテラス・宅配ボックス・オートロック、他。 ● 最新の物件情報はお気軽にお問い合わせ下さい ● 弊社は、都心・城南エリアで住まいをお探しのために結束した、不動産売買仲介の専門集団です。目黒区・世田谷区・大田区・品川区・渋谷区・港区を中心に新築戸建・中古戸建・土地の不動産(住宅)情報を掲載中!人脈を活かした未公開物件情報ルートを確保することで、逸早い情報提供を可能にしました。 当社が取り扱う地域は、都内23区の中でも人気のある駅・街が多いのが特徴です。あこがれの街にて新築戸建て・中古戸建・土地を購入ご検討の方は、是非一度リードホームにご相談下さい。しっかりとした不動産の知識・人脈のあるスタッフが、即日ご案内致します。是非、一度リードホームにて、都内人気エリアの不動産情報を探しに現地へ足を運びましょう。 ◆AM9:30~から営業! ◆フリーダイヤル 0120-423-023 |
||
| 取扱会社 |
|
||
| QRコード |
このQRコードを読み取ることで、スマホでも物件情報を確認できます。 |
||
※地図上に表示される物件の位置は付近住所に所在することを表すものであり、実際の物件所在地とは異なる場合がございます。

0120-423-023
営業時間 9:30~20:00 定休日:12月31日・1月1日・2日・3日
グランドメルシー駒沢に関するこだわり条件から探す
世田谷区の町名から探す
世田谷区にある駅から探す