00件
最近見た物件
00件
検討リスト
リードホームTOP > (マンション(売買))地域から探す > 港区 > グランシティ三田・三ノ橋
港区三田5丁目に「グランシティ三田・三ノ橋」が登場!
南北線白金高輪駅から徒歩約5分、大江戸線麻布十番駅から徒歩約10分、山手線田町駅から徒歩約15分。
4路線3駅利用可能な大変便利な立地に位置した物件です。
駅徒歩約5分。専有面積約115.43㎡の3LDK。南東向き3方角部屋。現況空室。ペット飼育可。
南北線・大江戸線・山手線・三田線の不動産(住宅)のことならリードホームへお任せ下さい。

0120-423-023
営業時間 9:30~20:00 定休日:12月31日・1月1日・2日・3日
無料!カンタン会員登録!お得情報満載!!
最新物件、未公開物件情報が閲覧いただけます!










(※元利均等方式 金利5.00%まで ※返済年数5~50年まで入力できます)
(※ボーナスは年2回で計算しています。1000万円まで入力できます)
(※物件購入時、その他諸費用が発生する場合がございます)





| 所在地 | 東京都港区三田5丁目 | ||
|---|---|---|---|
| 交通 | |||
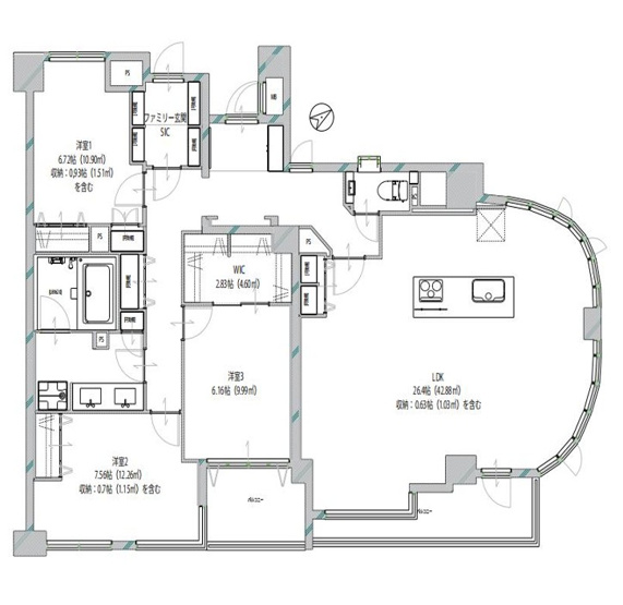
| 間取り/詳細 |
3LDK LDK 26.4帖/洋室 7.5帖/洋室 6.7帖/洋室 6.1帖 |
||
| 専有面積/バルコニー面積 | 115.43㎡/- | ルーフバルコニー面積/テラス面積/専用庭面積 | -/-/- |
| 価格 | 2億4,800万円 | ||
| 管理費 | 16,900円 | ||
| 修繕積立金 | 33,480円 | 修繕積立基金 | - |
| 権利金 | - | 駐車場/月額料金 | -/- |
| 土地の敷金/保証金 | -/- | 借地料/借地期間 | -/- |
| 土地権利 | 所有権 | 国土法届出要否 | 不要 |
| 用途地域 | 準工業 | 地勢 | - |
| 種別/構造 | 中古マンション/鉄筋コンクリート | 向き | 南東 |
| 築年月(築年数) | 2001年 5月 (築24年) | ||
| 所在階/階建 | 4階/7階建 | 棟総戸数/販売戸数 | 41戸/- |
| 管理組合有無 | 有 | 管理形態 | 管理会社に全部委託 |
| 管理方式 | 日勤 | 管理会社 | 株式会社東急コミュニティー |
| 取引態様 | 仲介 | 現況 | 空家 |
| 引渡し | 相談 | 建築確認番号 | - |
| 物件番号 | 100349926 | 取引条件の有効期限 | 2026年02月01日 |
| 設備条件 |
|
||
| 備考 |
◆「グランシティ三田・三ノ橋」のご紹介◆ ・「グランシティ三田・三ノ橋」は好立地! 南北線白金高輪駅から徒歩約5分、大江戸線麻布十番駅から徒歩約10分、山手線田町駅から徒歩約15分。 4路線3駅利用可能な大変便利な立地に位置した物件です。 小学校近隣の為子育てにも最適な住環境です。 ・「グランシティ三田・三ノ橋」は設備充実の物件! 床暖房・エアコン・アイランド型システムキッチン・食洗機・オートバス・追焚機能・2ボウル洗面台・温水洗浄便座・トイレ内手洗器・WIC・SIC・全居室収納・TVモニター付きインターホン・オートロック・エレベーター、他。 ● 最新の物件情報はお気軽にお問い合わせ下さい ● 弊社は、都心・城南エリアで住まいをお探しのために結束した、不動産売買仲介の専門集団です。目黒区・世田谷区・大田区・品川区・渋谷区・港区を中心に新築戸建・中古戸建・土地の不動産(住宅)情報を掲載中!人脈を活かした未公開物件情報ルートを確保することで、逸早い情報提供を可能にしました。 当社が取り扱う地域は、都内23区の中でも人気のある駅・街が多いのが特徴です。あこがれの街にて新築戸建て・中古戸建・土地を購入ご検討の方は、是非一度リードホームにご相談下さい。しっかりとした不動産の知識・人脈のあるスタッフが、即日ご案内致します。是非、一度リードホームにて、都内人気エリアの不動産情報を探しに現地へ足を運びましょう。 ◆AM9:30~から営業! ◆フリーダイヤル 0120-423-023 |
||
| 取扱会社 |
|
||
| QRコード |
このQRコードを読み取ることで、スマホでも物件情報を確認できます。 |
||
※地図上に表示される物件の位置は付近住所に所在することを表すものであり、実際の物件所在地とは異なる場合がございます。

0120-423-023
営業時間 9:30~20:00 定休日:12月31日・1月1日・2日・3日
港区の町名から探す
港区にある駅から探す