00件
最近見た物件
00件
検討リスト
リードホームTOP > (戸建(売買))地域から探す > 目黒区 > 目黒区駒場1丁目
目黒区駒場1丁目に戸建が登場!
井の頭線駒場東大前駅から徒歩約6分・神泉駅から徒歩約9分、田園都市線池尻大橋駅から徒歩約12分!
2路線3駅利用可能な大変便利な立地に位置した物件です。
駅徒歩約6分。閑静な住宅街。建物面積約80.89㎡の3階建3LDK+P。現況空室。
井の頭線・田園都市線の不動産(住宅・家・土地)のことならリードホームへお任せ下さい。

0120-423-023
営業時間 9:30~20:00 定休日:12月31日・1月1日・2日・3日
無料!カンタン会員登録!お得情報満載!!
最新物件、未公開物件情報が閲覧いただけます!










(※元利均等方式 金利5.00%まで ※返済年数5~50年まで入力できます)
(※ボーナスは年2回で計算しています。1000万円まで入力できます)
(※物件購入時、その他諸費用が発生する場合がございます)






| 所在地 | 東京都目黒区駒場1丁目 | ||
|---|---|---|---|
| 交通 | |||
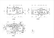
| 間取り/詳細 |
3LDK/ LDK 13.0帖/洋室 7.0帖/洋室 6.0帖 2室 |
建物面積(坪数) | 80.89㎡(24.46坪 |
| 価格 | 1億500万円 | ||
| 駐車場/月額料金 | 有/0円 | ||
| 土地の敷金/保証金 | -/- | 借地料/借地期間 | -/- |
| 土地権利 | 所有権 | 土地面積(坪数) | 52.54㎡(15.89坪) |
| 傾斜地部分面積 | - | 路地状敷地 | - |
| 私道負担面積/セットバック | -/無 | 高圧線下面積 | - |
| 地目/地勢 | 宅地/- | 接道状況 | 一方(西 私道 4.0m) |
| 建ぺい率/容積率 | 60%/160% | 用途地域 | 第一種中高層住居専用 |
| 都市計画 | - | 種別/構造 | 中古一戸建/木造 |
| 階建 | 3階建 | 築年月(築年数) | 2003年 3月 (築22年) |
| 総区画数/販売区画数 | 1区画/1区画 | 向き | 北西 |
| 現況 | 空家 | その他の法令上の制限 | 高度地区/準防火地域 |
| 取引態様/引渡時期 | 仲介/相談 | 建築確認番号 | - |
| 物件番号 | 99377263 | 取引条件の有効期限 | 2025年12月12日 |
| 設備条件 |
|
||
| 備考 |
◆目黒区駒場1丁目 戸建のご紹介◆ ・目黒区駒場1丁目 戸建は好立地! 井の頭線駒場東大前駅から徒歩約6分・神泉駅から徒歩約9分、田園都市線池尻大橋駅から徒歩約12分! 2路線3駅利用可能な大変便利な立地に位置した物件です。 小中学校近隣の為子育てにも最適な住環境です。 ・目黒区駒場1丁目 戸建は設備充実の物件! ロフト・システムキッチン・浴室窓・室内洗濯機置場・トイレ2か所・全居室収納・カースペース、他。 ● 最新の物件情報はお気軽にお問い合わせ下さい ● 弊社は、都心・城南エリアで住まいをお探しのために結束した、不動産売買仲介の専門集団です。目黒区・世田谷区・大田区・品川区・渋谷区・港区を中心に新築戸建・中古戸建・土地の不動産(住宅・家・土地)情報を掲載中!人脈を活かした未公開物件情報ルートを確保することで、逸早い情報提供を可能にしました。 当社が取り扱う地域は、都内23区の中でも人気のある駅・街が多いのが特徴です。あこがれの街にて新築戸建て・中古戸建・土地を購入ご検討の方は、是非一度リードホームにご相談下さい。しっかりとした不動産の知識・人脈のあるスタッフが、即日ご案内致します。是非、一度リードホームにて、都内人気エリアの不動産情報を探しに現地へ足を運びましょう。 ◆AM9:30~から営業! ◆フリーダイヤル 0120-423-023 |
||
| 取扱会社 |
|
||
| QRコード |
このQRコードを読み取ることで、スマホでも物件情報を確認できます。 |
||
※地図上に表示される物件の位置は付近住所に所在することを表すものであり、実際の物件所在地とは異なる場合がございます。

0120-423-023
営業時間 9:30~20:00 定休日:12月31日・1月1日・2日・3日
目黒区駒場1丁目に関するこだわり条件から探す