00件
最近見た物件
00件
検討リスト
リードホームTOP > (戸建(売買))地域から探す > 品川区 > 品川区戸越6丁目
品川区戸越6丁目に戸建が登場!
浅草線中延駅から徒歩約3分、大井町線中延駅から徒歩約4分、池上線戸越銀座駅から徒歩約9分!
3路線3駅利用可能な大変便利な立地に位置した物件です。
駅徒歩約3分。建物面積約98.38㎡の3LDK+P。接道幅員約6.2m。コンビニ至近。
浅草線・大井町線・池上線の不動産(住宅・家・土地)のことならリードホームへお任せ下さい。

0120-423-023
営業時間 9:30~20:00 定休日:12月31日・1月1日・2日・3日
無料!カンタン会員登録!お得情報満載!!
最新物件、未公開物件情報が閲覧いただけます!










(※元利均等方式 金利5.00%まで ※返済年数5~50年まで入力できます)
(※ボーナスは年2回で計算しています。1000万円まで入力できます)
(※物件購入時、その他諸費用が発生する場合がございます)




| 所在地 | 東京都品川区戸越6丁目 | ||
|---|---|---|---|
| 交通 | |||
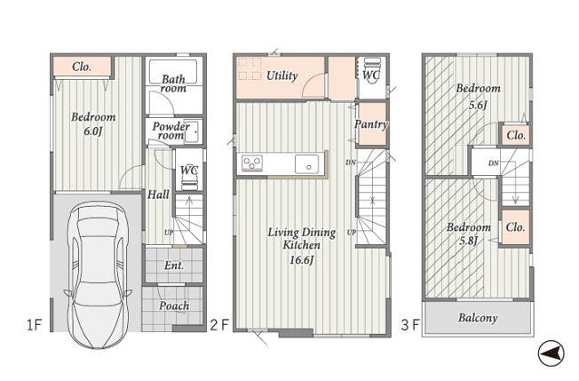
| 間取り/詳細 |
3LDK/ LDK 16.6帖/洋室 6.0帖/洋室 5.8帖/洋室 5.6帖 |
建物面積(坪数) | 98.38㎡(29.76坪 |
| 価格 | 1億1,400万円 | ||
| 駐車場/月額料金 | 有(1台)/- | ||
| 土地の敷金/保証金 | -/- | 借地料/借地期間 | -/- |
| 土地権利 | 所有権 | 土地面積(坪数) | 56.55㎡(17.10坪) |
| 傾斜地部分面積 | - | 路地状敷地 | - |
| 私道負担面積/セットバック | -/無 | 高圧線下面積 | - |
| 地目/地勢 | 宅地/- | 接道状況 | 一方(西 公道 6.2m 間口 5.9m) |
| 建ぺい率/容積率 | 60%/200% | 用途地域 | 第一種住居/近隣商業 |
| 都市計画 | 市街化区域 | 種別/構造 | 新築一戸建/木造 |
| 階建 | 3階建 | 築年月(築年数) | 2026年 1月 (予定) |
| 総区画数/販売区画数 | 1区画/1区画 | 向き | 西 |
| 現況 | 未完成 | その他の法令上の制限 | 高度地区/準防火地域 |
| 取引態様/引渡時期 | 仲介/相談 | 建築確認番号 | 第KBI-YKH25-10-1707号 |
| 物件番号 | 98726579 | 取引条件の有効期限 | 2025年11月17日 |
| 設備条件 |
|
||
| 備考 |
◆品川区戸越6丁目 戸建のご紹介◆ ・品川区戸越6丁目 戸建は好立地! 浅草線中延駅から徒歩約3分、大井町線中延駅から徒歩約4分、池上線戸越銀座駅から徒歩約9分! 3路線3駅利用可能な大変便利な立地に位置した物件です。 小学校や保育園近隣の為子育てにも最適な住環境です。 ・品川区戸越6丁目 戸建は設備充実の物件! 床暖房・複層ガラス・食洗機・浄水器付システムキッチン・人造大理石ワークトップ・オートバス・浴室乾燥機・24時間換気システム・室内洗濯機置場・トイレ2か所・フローリング・リビングイン階段・全居室収納・パントリー、他。 ・建物面積には車庫面積約11.38㎡を含みます。 ● 最新の物件情報はお気軽にお問い合わせ下さい ● 弊社は、都心・城南エリアで住まいをお探しのために結束した、不動産売買仲介の専門集団です。目黒区・世田谷区・大田区・品川区・渋谷区・港区を中心に新築戸建・中古戸建・土地の不動産(住宅・家・土地)情報を掲載中!人脈を活かした未公開物件情報ルートを確保することで、逸早い情報提供を可能にしました。 当社が取り扱う地域は、都内23区の中でも人気のある駅・街が多いのが特徴です。あこがれの街にて新築戸建て・中古戸建・土地を購入ご検討の方は、是非一度リードホームにご相談下さい。しっかりとした不動産の知識・人脈のあるスタッフが、即日ご案内致します。是非、一度リードホームにて、都内人気エリアの不動産情報を探しに現地へ足を運びましょう。 ◆AM9:30~から営業! ◆フリーダイヤル 0120-423-023 |
||
| 取扱会社 |
|
||
| QRコード |
このQRコードを読み取ることで、スマホでも物件情報を確認できます。 |
||
※地図上に表示される物件の位置は付近住所に所在することを表すものであり、実際の物件所在地とは異なる場合がございます。

0120-423-023
営業時間 9:30~20:00 定休日:12月31日・1月1日・2日・3日
品川区戸越6丁目に関するこだわり条件から探す